Situé rue Championnet, dans le 18e arrondissement de Paris, cet appartement de 2 pièces de 32,04 m² (loi Carrez) se trouve au 2ème étage avec ascenseur d'un immeuble de 1929, bien entretenu et doté d'un gardien.
Le bien, actuellement loué pour un loyer mensuel de 1 000 € charges comprises, sera libre à la fin de l'année.
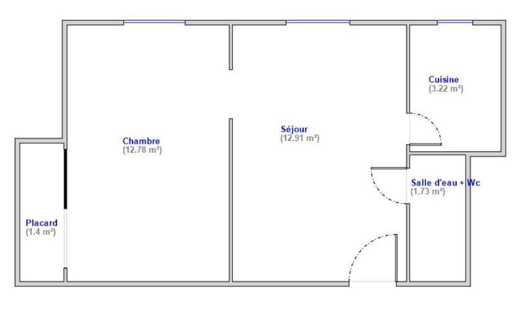
L'appartement, en bon état, comprend :
Ce bien allie charme et fonctionnalité, avec son parquet droit, une belle hauteur sous plafond de 2,72 m, et des fenêtres en PVC équipées de double vitrage. L'orientation Nord-Est garantit une luminosité agréable. Chauffage collectif inclus.
Un débarras situé sur le même palier offre un espace de stockage pratique.
Localisation : Proche des lignes de métro 13 ("Guy Môquet") et 12 ("Lamarck – Caulaincourt"), l'appartement bénéficie également d’un accès facile aux commerces, aux espaces verts et aux transports en commun.
Pour plus d'informations ou pour organiser une visite, veuillez contacter Eric LEFEBVRE.
Bien vendu soumis au statut de la copropriété
| Type de chauffage : | Fuel |
|---|---|
| Nombre d'étages : | 6 |
| Année de construction : | 1929 |
| Nombre de salles d'eau : | 1 |
| Nombre de WC : | 1 |
| Ascenseur : | oui |
|---|---|
| Cave : | oui |
| Digicode : | oui |
| Interphone : | oui |
| Nom du mandataire : | LEFEBVRE Eric |
|---|---|
| Téléphone mandataire : | 07 88 99 80 91 |
| E-mail mandataire : | Veuillez utiliser le formulaire de contact ci-dessous ... |
| Négociateur : | LEFEBVRE Eric |