Nouvelle recherche Cette annonce m'intéresse

Appartement au 7ème étage avec balcon en résidence service sénio

Prix : 380 000,00 
Dont honoraires 5,56 % TTC inclus à la charge de l'acquéreur, soit 360 000 € hors honoraires.
Type de bien : Appartement
Pièces : 2 pièces / 1 chambre
Surface : 58,63m²
Localité : PARIS-16 (75016) FRANCE
Référence : FONTAINE

Description du bien

Appartement au 7ème étage avec balcon en résidence service sénior non médicalisée en plein cœur d'Auteuil - Exposition SUD


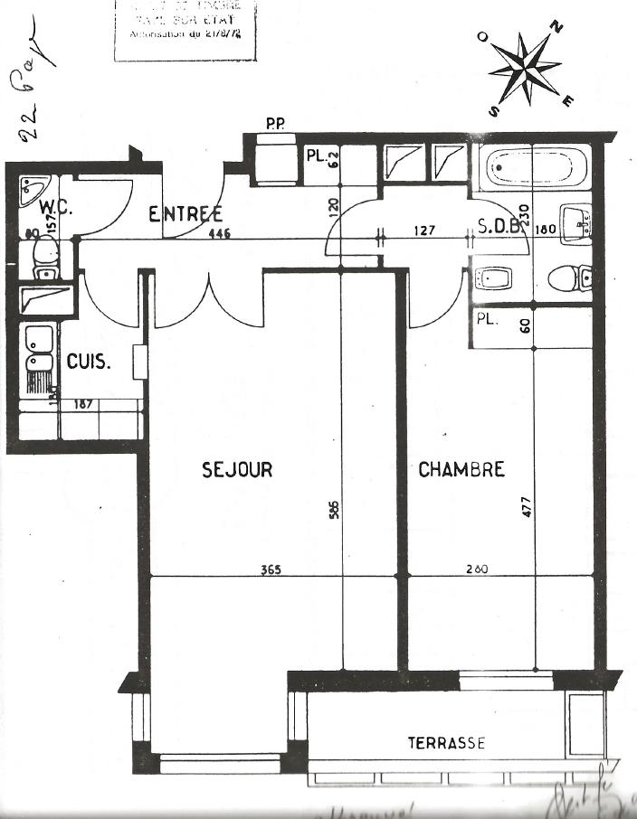
Situé rue Jean de la Fontaine, à deux pas de la Place Jean Lorrin, se trouve cet appartement au 7ème étage avec ascenseur d'une superficie de 58,63m2 carrez + 4,73m2 de balcon.


Il se compose d'une entrée avec de nombreux rangements, d'une grande pièce de vie avec cuisine séparée, d'une chambre, d'une salle d'eau avec toilette, d'un toilette séparé et d'un balcon.

Exposition SUD


La résidence est standing, très bien entretenue et sécurisé 24h/24. Salle de réception et de divertissement, restaurant, bar, jardins.

PLAN EN DERNIERE PHOTO


Charges annuelles : 9600€


Contactez Thomas Pintaparis


Performance énergétique

logement extrêmement consommateur d’énergie logement très performant passoire énergétique kg CO /m².an ² consommation (énergie primaire) émissions kWh/m².an 181 5 *
5 kg CO /m².an ² * Dont émissions de gazà effet de serre peu d’émissions de CO émissions de COtrès importantes ² ²

Montant des dépenses théoriques annuelles d’énergie

Coût annuel (min) : 880.00 €
Coût annuel (max) : 1230.00 €
Année de référence : 2021

Caractéristiques

Nombre d'étages : 8
Année de construction : 1990
Nombre de salles d'eau : 1
Nombre de WC : 2
Nombre de balcons : 1

Commodités

Ascenseur : oui
Cave : oui
Digicode : oui
Interphone : oui

Mandat

Nom du mandataire : MAZET Juless
E-mail mandataire : Veuillez utiliser le formulaire de contact ci-dessous ...
Négociateur : MAZET Juless

Cette annonce m'intéresse

Captcha
* Les champs suivis d'un astérisque sont obligatoires.

Conformément à la loi n°78-17 du 6 janvier 1978 modifiée relative à l'informatique, aux fichiers et aux libertés, et au règlement européen 2016/679, dit Règlement Général sur la Protection des Données (RGPD), vous disposez d'un droit d'accès, de rectification, de suppression des informations qui vous concernent.
Navigateur non pris en charge

Le navigateur Internet Explorer que vous utilisez actuellement ne permet pas d'afficher ce site web correctement.

Nous vous conseillons de télécharger et d'utiliser un navigateur plus récent et sûr tel que Google Chrome, Microsoft Edge, Mozilla Firefox, ou Safari (pour Mac) par exemple.
OK