Nouvelle recherche Cette annonce m'intéresse

Bel appartement familial, avec une panoramique sur Paris

Prix : 1 500 000,00 
Dont honoraires 43 689,00 € TTC inclus (3,00 %) à la charge de l'acquéreur, soit 1 456 311 € hors honoraires.
Type de bien : Appartement
Pièces : 4 pièces / 2 chambres
Surface : 110,33m²
Localité : PARIS-5E-ARRONDISSEMENT (75005) FRANCE
Référence : LACEPEDE3

Description du bien

VENTE DE LA NUE PROPRIETE - Homme 90 ans


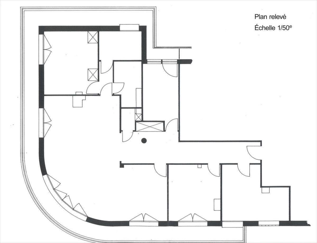
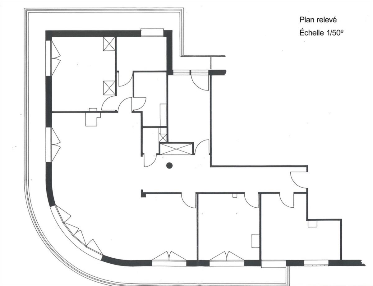
Rue Lacepède, au cœur du 5ème arrondissement, entre la place Monge et la rue Mouffetard, se trouve cet appartement 4 pièces d'une surface de 110,33m2 au 7ème étage en angle avec un balcon filant de 35m2, offrant une vue panoramique sur Paris et ses monuments (Val de Grace, Panthéon, Tour Eiffel)


Il se compose d'une pièce de vie, de 2 chambres (possible d'une 3ème) d'une cuisine, d'une salle de bains et d'un toilette séparé. 


Chauffage collectif - Exposition EST-SUD-OUEST
La copropriété est gérée par une gardienne - local vélo

CROQUIS EN DERNIERE PHOTO


Place de stationnement possible en sus, dans l'immeuble voisin



Contactez Thomas Pintaparis

Performance énergétique

logement extrêmement consommateur d’énergie logement très performant passoire énergétique kg CO /m².an ² consommation (énergie primaire) émissions kWh/m².an 204 37 *
37 kg CO /m².an ² * Dont émissions de gaz à effet de serre peu d’émissions de CO émissions de CO très importantes ² ²

Montant des dépenses théoriques annuelles d’énergie

Coût annuel (min) : 1520.00 €
Coût annuel (max) : 2090.00 €
Année de référence : 2021

Caractéristiques

Nombre d'étages : 9
Année de construction : 1970
Nombre de salles de bain : 1
Nombre de WC : 1
Terrasse : oui
Nombre de balcons : 1

Commodités

Ascenseur : oui
Cave : oui
Digicode : oui
Interphone : oui

Mandat

Nom du mandataire : MAZET Jules
Téléphone mandataire : 06 52 10 00 59
E-mail mandataire : Veuillez utiliser le formulaire de contact ci-dessous ...
Négociateur : MAZET Jules

Cette annonce m'intéresse

Captcha
* Les champs suivis d'un astérisque sont obligatoires.

Conformément à la loi n°78-17 du 6 janvier 1978 modifiée relative à l'informatique, aux fichiers et aux libertés, et au règlement européen 2016/679, dit Règlement Général sur la Protection des Données (RGPD), vous disposez d'un droit d'accès, de rectification, de suppression des informations qui vous concernent.
Navigateur non pris en charge

Le navigateur Internet Explorer que vous utilisez actuellement ne permet pas d'afficher ce site web correctement.

Nous vous conseillons de télécharger et d'utiliser un navigateur plus récent et sûr tel que Google Chrome, Microsoft Edge, Mozilla Firefox, ou Safari (pour Mac) par exemple.
OK